
1. Beispiel: Dokumentation von Schimmelbefall
Den Schimmelbefall einer Wand kann mit einer Skizze (s. folgende Grafik) oder fotografisch dokumentiert werden. Der Schimmel befindet sich in den schraffierten Flächen. Aus der Verteilung von Feuchtigkeit und Oberflächentem-peratur lassen sich Ursachen und Sanierungsmöglichkeiten herleiten.

Schadensaufnahme bei Schimmelbefall
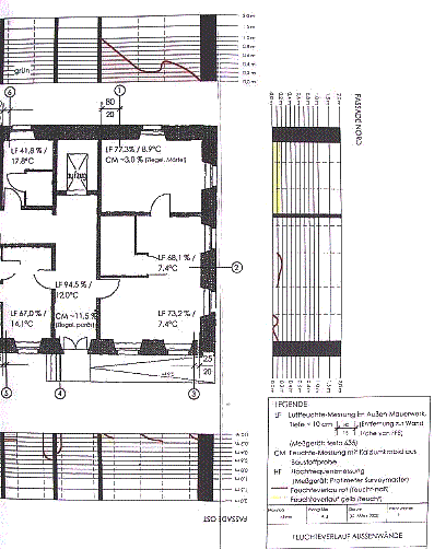
2. Beispiel: Erstellung eines Feuchteprofils
Um eine Sanierung vorzubereiten, wird ein Feuchteprofil von den betroffenen Bauteilen erstellt. Dabei kommen gleichzeitig verschiedene Messmethoden zum Einsatz, welche die Schwächen der einzelnen Messgeräte korri-gieren. Hier das Feuchteprofil der Außenwände eines über 200 Jahre alten Gebäudes, das mit unterschiedlichen Messmethoden ermittelt wurde.

Feuchteprofil einer Aussenwand

Feuchtemessung der Luft in einem Bohrloch zur Ermittlung der Gleichgewichtsfeuchte der Wand
3. Beispiel: Erfassung der Intensität von Lüftung und Heizung
Bei Unstimmigkeiten über das richtige Lüften und Heizen kommen Datenlogger zur Anwendung. Diese kleinen Messgeräte werden im zu untersuchenden Raum über einen längeren Zeitraum (2-6 Wochen) aufgehängt. Sie erfassen die Häufigkeit der Lüftung und die Intensität der Heizung durch stündliche Messungen der Luftfeuchte und Lufttemperatur.

Messprotokoll eines Datenloggers
Individuelle Beratung
Wir beraten Sie über Umfang und Aufwand der Begutachtung Ihres Bauschadens oder Sanierungsfalles.
|